- Wohneinheitenfläche
- Um 76 m²
- Grundstücksfläche
- Um 125 m²
- Baujahr
- Baujahr 1948
- Anzahl der Zimmer
- 4 Räume (3 Schlafzimmer)
Diese Wohnungen wurden um 1950 als Mietwohnungen gebaut. Im Laufe der Zeit wurde sie privater Eigentum und die Wohnung wurde modernisiert sowie kosmetisch überarbeitet und mit einer Terrasse erweitert. An einigen Stellen isoliert und mit Doppelfenstern ausgestattet, sodass das Energie-Label D sicherstellt, dass die Energiesteuer sehr gut kontrollierbar ist
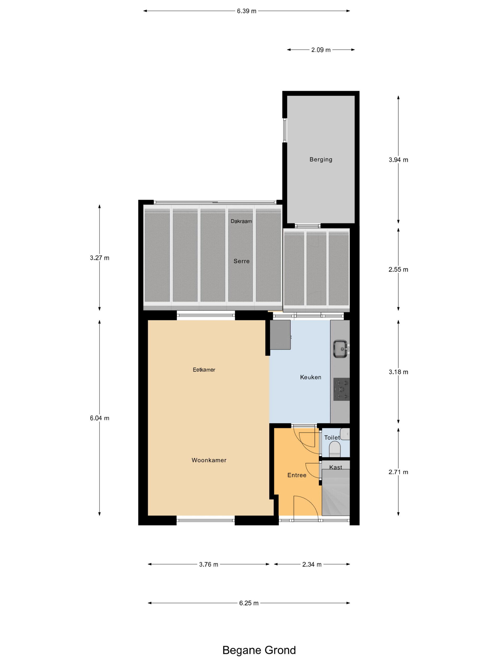
Einteilung:
Erdgeschoss: Eingang; Raum mit Treppenaufgang; Toilettenraum; Wohnzimmer von ca. 22 m² mit einer offenen Küche, in der dieses Jahr eine neue Küchenanlage installiert wurde. Aus der Küche gelangt man in die Terrasse, wo es sich wohlfühlt und die auch trockene Zugänge zum zweigeschossigen Schuppen bietet. Im hinteren Teil des Gartens befindet sich ein Praxisraum, der als Beauty-Salon genutzt wird.
Etage: Flur; drei Schlafzimmer, davon zwei mit einem geräumigen Schrank; vorderseitig der Badezimmerbereich mit Dusche und Waschbeckenkommode sowie eine Heizungsraum, der auch als Lagerraum und Wäscheplatz genutzt wird.
Gemütliche Wohnumgebung in einer ruhigen Straße mit ausreichend Parkplatz.
Neugierig auf diese Immobilie? Rufen Sie an, um einen Termin für eine Besichtigung zu vereinbaren. Für weitere Informationen leiten wir Sie gerne auf unsere Website weiter. Dort finden Sie eine detaillierte Präsentation dieser Immobilie. Kontaktieren Sie Sie Bert Bimmel Makelaardij (0118-414014), um einen Termin für die Besichtigung zu vereinbaren. Wir freuen uns, Ihnen gerne eine Rundreise durch diese Immobilie anzubieten.
Übertrag
- Verhandlungspreis
- 209.000 € k.K.
- Status
- Verkauft
- Hinnehme
- Im Gespräch
Bau
- Gegenstandsart
- Eingefamilles Haus, Reihenhaus
- Bauart
- Existierende Bauwerke
- Baujahr
- 1948
- Dachart
- Dach First mit Schindeln bedeckt
Oberfläche und Inhalt
- Wohneinheitenfläche
- 76 m²
- Grundstücksfläche
- 125 m²
- Inhalt
- 323 m³
- Außenbereich
- 15 m²
- Gebäudebezogene Freifläche
- 20 m²
Einteilung
- Anzahl der Zimmer
- 4 Räume (3 Schlafzimmer)
- Anzahl der Badezimmer
- 1 Badezimmer
- Badezimmerausstattung
- Waschbeckenanbau, Duschbad
- Anzahl der Wohnetagen
- 2 Wohnetagen
- Maßnahmen
- Fernsehkabel
Energie
- Energietag
- D
- Energietag-Register
- 23-10-2023
- Heizung
- Brennkessel
- Warmes Wasser
- Brennkessel
- Kessel
- Nefit Combi-Kessel Gasgeheizt ab 2024 (Kaltmiete)
Außenraum
- Lage
- An ruhiger Straße, in Wohngebiet
- Garten
- Hintergarten
- Abmessungen des Hintergartens
- 72 qm (12 Meter tief und 6 Meter breit)
- Lage des Gartens
- Liegende im Westen und erreichbar über den Hinterausgang
Bergspace
- Schleifwerkstatt / Lager
- Angebautes Stein
- Maßnahmen
- Mit Elektrik ausgestattet
Garage
- Garagenart
- Keine Garage
Parkplatz
- Parkplatzart
- Offen parken
Energieverbrauch ein Vlissingen
Energietag der Wohnung
Energielabel D
Energietagmenteil: 23-10-2023
Jahres-Stromverbrauch
(Durchschnitt Durchhaus in Vlissingen)
Gaskonsum pro Jahr
(Durchschnitt Durchhaus in Vlissingen)
* Zahlen stammen vom CBS und sollen als Indikatoren dienen und können für diese Wohnung unterschiedlich sein
Hypothekenbelastungen
Eigene Einlage:
Ersparnisse / Überwert
Zins:
Niedrigste 10-Jahres-Zinssatz
Niedrigste 10-Jahres-Zinssatz
2,83% - Centraal Beheer Groen... - NHG
3,1% - Centraal Beheer Groen L... - 80%
Niedrigste 20-jährige Zinssatz
3,26% - Argenta Groen Hypothee... - NHG
3,47% - Argenta Groen Hypothee... - 80%
Niedrigste 30-jährige Zinssatz
3,43% - Argenta Groen Hypothee... - NHG
3,64% - Argenta Groen Hypothee... - 80%
Hypothek:
Bruttomonatslasten: € 0 p/m
Nettomonatskosten: € 0 p/m
Wie berechnen wir dies?
Der Zinssatz basiert auf dem niedrigsten 10-jährigen Festzins für einen einzelnen Hypothekenteil. Der angegebene Zinssatz (2.83% met NHG) wurde am 05-12-2025 überprüft. Diese Berechnung basiert auf einer Annuitätenhypothek, die vollständig zurückgezahlt wird, wobei die monatlichen Zahlungen während der gesamten Laufzeit gleich bleiben. Der tatsächliche Zinssatz und die monatlichen Nettokosten können je nach Ihrer persönlichen Situation und dem Hypothekengeber variieren. Wenden Sie sich für eine genaue Berechnung und Beratung an einen Finanzberater. Aus dieser Berechnung können keine Rechte abgeleitet werden; sie dient lediglich als Orientierung.
Dokumentation
Katasterkarte
Lebensumgebung
Planansichten PDF
Wertbescheinigung
Krankenkassenbeleg
Broschüre
Sehen Sie unsere Website an
Besichtigung
Boden verlegen
Wertschätzung
Suchanfrage
Alles herunterladen
Sonnengrenzen betrachten
Auf der Karte
Bewohner von Vlissingen
Zahlen für Postleitzahl-Region 4383
- Gesamtbevölkerungszahl
- 3155 Bewohner
- Männer
- 52%
- Frauen
- 48%
Bewohner von Vlissingen
Zahlen für Postleitzahl-Region 4383
- bis 15 Jahre
- 14%
- 15 bis 25 Jahre
- 16%
- 25 bis 35 Jahre
- 28%
- 45 bis 65 Jahre
- 25%
- 65 und älter
- 16%
Haushalte von Vlissingen
Zahlen für Postleitzahl-Region 4383
- Einpersonig ohne Kinder
- 54%
- Erwachsene ohne Kinder
- 22%
- Haushalte ohne Kinder
- 76%
Haushalte von Vlissingen
Zahlen für Postleitzahl-Region 4383
- Haushalte mit einem Kind
- 6%
- Haushalte mit mehreren Kindern
- 18%
- Haushalte mit Kindern
- 24%
Wohnungen in Vlissingen
Zahlen für Postleitzahl-Region 4383
- Wohnungen vor 1945
- 1%
- Wohnungen zwischen 1945 und 1965
- 48%
- Wohnungen zwischen 1965 und 1975
- 14%
- Wohnungen zwischen 1975 und 1985
- 1%
- Wohnungen zwischen 1985 und 1995
- 14%
Wohnungen in Vlissingen
Zahlen für Postleitzahl-Region 4383
- Wohnungen zwischen 1995 und 2005
- 5%
- Wohnungen zwischen 2005 und 2015
- 12%
- Wohnungen nach 2015
- 6%
- Mietwohnungen
- 50%
- Eigentumswohnungen
- 40%
Sonstige Einzahlungen Vlissingen
Zahlen für Postleitzahl-Region 4383
- Durchschnittliche WOZ-Wert
- € 131.000,-
- Personen unter 65 Jahren mit Hinterbliebenengeld
- 12%
Sonstige Einzahlungen Vlissingen
Zahlen für Postleitzahl-Region 4383
- Adressen pro Quadratkilometer
- 2409
- Urbanität (Skala von 1 bis 5)
- 80%
Über Bert Bimmel Immobilien
Unser Büro ist seit 1990 auf dem Immobilienmarkt aktiv, als Bert Bimmel ein bestehendes Maklerbüro übernahm. Vor diesem Schritt arbeitete er bereits jahrelang im Immobilienbereich bei einem internationalen Ingenieurbüro. Das Büro begann mit zwei Personen und ist in den Jahren zu einem der führenden Maklerbüros in Zeeland herangewachsen.
Bert Bimmel hat einen technischen Hintergrund, was im Bereich sehr wichtig ist. Auch die Mitarbeiter unseres Büros besuchen regelmäßig Kurse und Schulungen, um sich über neue Entwicklungen zu informieren, ihr Wissen auszubauen und Fähigkeiten zu erweitern. Zwei unserer Büromitarbeiter sind vollständig zertifizierte NVM-Makler. Die Zertifizierung bedeutet unter anderem, dass der Makler ständig weiterbildungsreif ist im Bereich Immobilienmakler und das Praxisdiplom Immobilienmakler-Versteigerer erfolgreich abgelegt hat. Darüber hinaus sind sie verpflichtet, jedes Jahr fortgeschrittenen Unterricht zu absolvieren.
Neueste Bewertungen
-
Van Hogendorpweg 82
Beoordeeld met een 8.8
-
Nieuwstraat 7 a
Der Makler war immer gut erreichbar und handelte stets schnell. Die Informationen, die wir nach einer Besichtigung von ihm erhielten, waren...
-
Willem Klooslaan 62
Die Bewertung in jeder Hinsicht, Sehr Gut, nach meiner Meinung. Ein fantastisch gut informiertes Team, das sich optimal ergänzt und wenn not...